产品中心
PRODUCT CENTER
联系我们
Contact us
巩义市新华丰道讑֤有限公司
固 话:0371-64033589
手 机:18638168566 13783416000
13683712868 13838577194
联系人:王先?女?/p>
Q QQ?622356298
旺 旺:gyhuafeng
微 信:wei13683712868
| 址Qhttp://www.jnsdcnc.com/
地 址Q河南省巩义市西村开发区永安路南D?11?/p>
- 产品介绍
- 适用范围
- CAD囄
- 技术参?
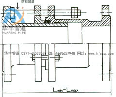
伸羃器性能特点Q?/p>
伸羃器也UC~节、膨胀节、补偿器。~器在一定范围内可u向~,也能在一定的角度内克服管道对接不同u向而生的偏移Q能*的方侉K门管道的安装与拆卸,在管道允怎~量中可以自׃~,一旦越q其*大~量pv到限位,保道的安全运行。主要ؓ保障道安全q行Q具有以下作用:补偿吸收道轴向、横向、角向热变ŞQ吸收设备振动,减少讑֤振动对管道的影响Q吸收地震、地陷对道的变形量。套式伸羃器ؓ各种l排水管道、水塔、水c水表、阀门的安装拆换提供?方便Q给长距ȝ路因温差伸羃起到了很好的调节作用?/p>

巩义市新华丰道讑֤有限公司
L产品Q补偿器、套{补偿器、球形补偿器、无推力补偿器、旋转补偿器
?sh)? 0371-64033589
手机: 13683712868,18638168566,13783416000,13838577194 联系? 王先?女?br/>公司地址: 沛_省m义市西村开发区永安路南D?11受邮政~码: 451200
本网站支持新q告法,Z影响客户览Q页面区域用词正在排查修改,本店所有页?化用词和功能性用词在此声明前全部失效Q不接受不妥协Q何Ş式的*化用词和功能性用词赔付,希望各位消费者理解,职业打假人高抬贵手?/span>














